MAGNOLIA REMODEL

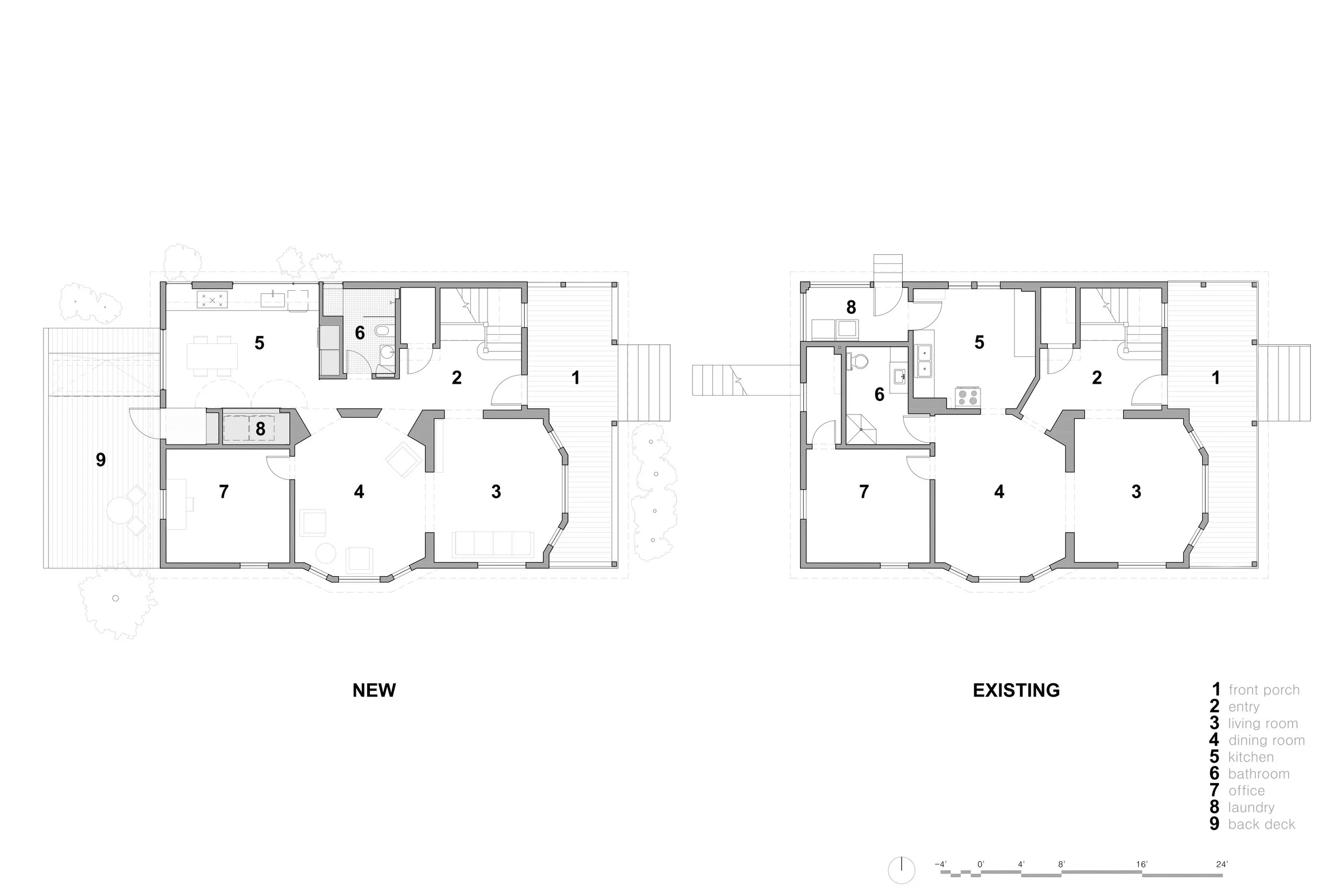
After decades of adjustments, this 1914 traditional craftsman home required a strategic modern intervention that leveraged the qualities of the original design and updated the inadequate and overworked areas. Easy access was given to the new kitchen, laundry closet, back yard, and main floor living spaces without compromising each space’s sense of privacy and individuality. The new bathroom found a central but discrete location. A simple kitchen was designed as the home’s social center, providing a space for cooking, dining, laundry, and circulation to an open back yard. The original traditional details were maintained and inspired the new architectural solutions. Existing angled walls were mimicked to reestablish spacial symmetry, douglas fir cabinets and oak floors extended the existing material palette, and traditional trim profiles and millwork accentuated new window detailing.

Construction: Lasting Nest

Photography: Mark Woods

Structural Design: Todd Perbix

Previous
Previous

MADRONA PASSIVE HOUSE

Next
Next

GENESEE HILL KITCHEN